Espace propriétaire
fr

Votre recherche

Saint-Louis (97450)

Bureaux - 1 128,26 m²

A VENDRE - LOT DE BUREAUX A PARTIR DE 50.35 M² ENVIRON - SAINT-LOUIS - A PARTIR DE 163 889 €

163 889 €
Ref : 4513-DL
Découvrir le bien

A VENDRE - Le Cabinet Habilis vous propose à la vente un ensemble de bureaux situés à SAINT-LOUIS dans le centre d'affaires ORION.

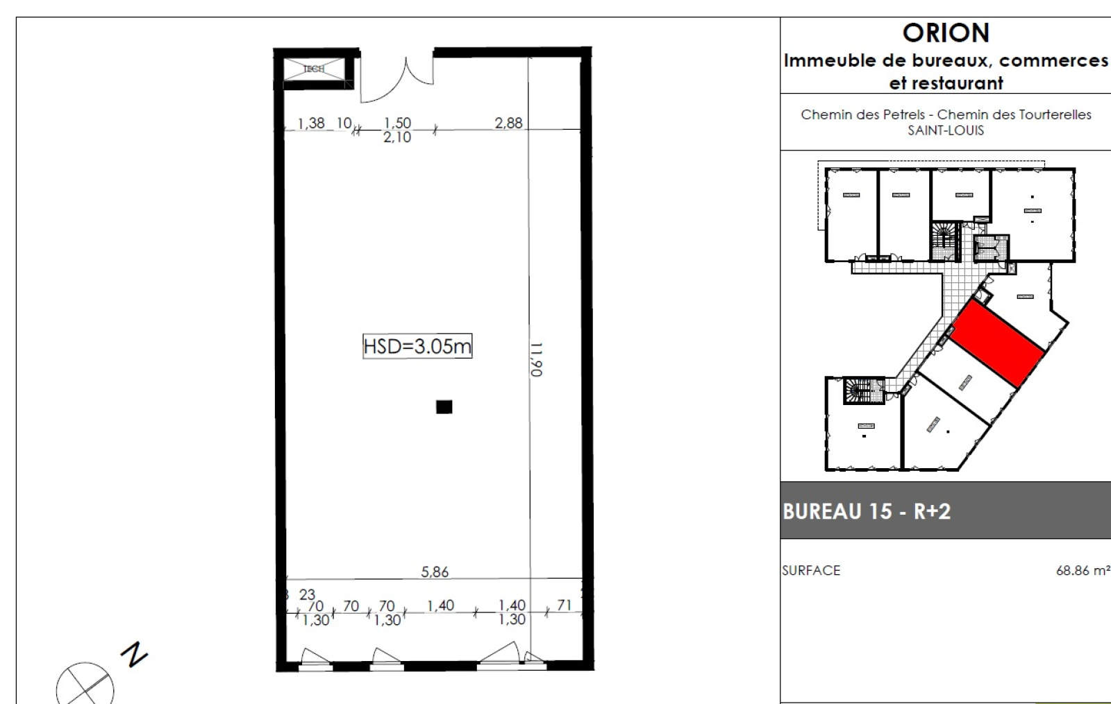
L’immeuble de bureaux ORION s’élève sur 4 niveaux avec 27 locaux modulables sur une surface utile totale de 2 856m ².

Au Rez de Chaussée, des commerces et une zone de restauration seront proposés afin d’offrir aux usagers des services de qualités au sein d’un seul espace.

L’accès aux étages sera desservi par un ascenseur.

L’implantation du bâtiment en U permet la création d’un espace libre central traité comme un patio planté.

Les lots disponibles à la commercialisation sont les suivants :

- Au deuxième étage :

Lot 14 : Un bureau de 73.7 m² environ et deux places de parking au prix de 247 890 €

Lot 15 : Un bureau de 68.86 m² environ et deux places de parking au prix de 224 139 €

Lot 16 : Un bureau de 68.86 m² environ et deux places de parking au prix de 224 139 €

Lot 17 : Un bureau d'environ 95.08 m² et deux places de parking au prix de 309 485 €

Lot 18 : Un bureau d'environ 93.53 m² et deux places de parking au prix de 304 440 €


- Au troisième étage :

Lot 19 : Un Bureau de 77.91 m² environ et deux places de parking au prix de 253 597 €

Lot 20 : Un bureau de 78.86 m² environ ainsi que deux places de parking au prix de 256 890 €

Lot 21 : Un bureau de 50.35 m² environ et une place de parking au prix de 163 889 €

Lot 22 : Un bureau de 121.08 m² environ et trois places de parking au prix de 394 115 €

Lot 23 : Un bureau de 73.7 m² environ et deux places de parking au prix de 239 893 €

Lot 24 : Un bureau de 68.86 m² environ et deux places de parking au prix de 224 139 €

Lot 25 : Un bureau de 68.86 m² environ et deux places de parking au prix de 224 139 €

Lot 26 : Un bureau d'environ 95.08 m² et deux places de parking au prix de 309 485 €

Lot 27 : Un bureau de 93.53 m² environ et deux places de parking au prix de 304 440 €

Les honoraires sont à la charge du vendeur.

Les bureaux se trouvent dans un quartier multi-services, à proximité de toutes commodités.

Date de livraison : 3ème Trimestre 2025
Eligible au Crédit d’impôt

Vous recherchez à investir dans un projet de qualité, que vous soyez un particulier ou un professionnel, ce projet immobilier est un placement rentable et sécurisé pour vous constituer un patrimoine et assurer votre avenir.

Vous pouvez consulter notre grille tarifaire en vigueur à l’adresse suivante : https://www.cabinet-habilis.com/docs/nos-honoraires.pdf

Les informations sur les risques auxquels ce bien est exposé sont disponibles sur le site géorisques : www.georisques.gouv.fr

Contactez Mr LANGLADE Dominique (Entrepreneur individuel), agent commercial sous le N° RSAC 328 617 261 de Saint Pierre par téléphone au 0693 11 41 85 ou au 0262 10 58 24 ou par mail sur d.langlade@cabinet-habilis.com ou sur conseil@cabinet-habilis.com

Annonce rédigée sous la responsabilité éditoriale de l'agent commercial.

TRAD_ZEPHYR_Caracteristique TRAD_ZEPHYR_Valeurs
Type de transac Bureaux
Code postal 97450
Superficie (m²) 1128.26
TRAD_ZEPHYR_Caracteristique TRAD_ZEPHYR_Valeurs
Prix de vente honoraires inclus 163 889 €
Etage 2
bureau 73.7 m²

bureau 95.05 m²

bureau 68.86 m²

bureau 68.86 m²

bureau 93.53 m²

bureau 77.91 m²

bureau 78.86 m²

bureau 50.35 m²

bureau 121.8 m²

bureau 73.7 m²

bureau 68.86 m²

bureau 68.86 m²

bureau 93.53 m²

bureau 95.08 m²

DPE GES
Contacter pour ce bien
L'agence
Téléphone 02 62 10 58 24
Adresse
38 rue du Presbytère 97410 Saint-Pierre

* Champ obligatoire

Les informations recueillies sur ce formulaire sont enregistrées dans un fichier informatisé par La Boite Immo agissant comme Sous-traitant du traitement pour la gestion de la clientèle/prospects de l'Agence / du Réseau qui reste Responsable du Traitement de vos Données personnelles. La base légale du traitement repose sur l'intérêt légitime de l'Agence / du Réseau. Elles sont conservées jusqu'à demande de suppression et sont destinées à l'Agence / au Réseau. Conformément à la loi « informatique et libertés », vous disposez des droits d’accès, de rectification, d’effacement, d’opposition, de limitation et de portabilité de vos données. Vous pouvez retirer votre consentement à tout moment en contactant directement l’Agence / Le Réseau. Consultez le site https://cnil.fr/fr pour plus d’informations sur vos droits. Si vous estimez, après avoir contacté l'Agence / le Réseau, que vos droits « Informatique et Libertés » ne sont pas respectés, vous pouvez adresser une réclamation à la CNIL. Nous vous informons de l’existence de la liste d'opposition au démarchage téléphonique « Bloctel », sur laquelle vous pouvez vous inscrire ici : https://www.bloctel.gouv.fr Dans le cadre de la protection des Données personnelles, nous vous invitons à ne pas inscrire de Données sensibles dans le champ de saisie libre.
Ce site est protégé par reCAPTCHA, les Politiques de Confidentialité et les Conditions d'Utilisation de Google s'appliquent.

Découvrir nos outils