Espace propriétaire
fr

Votre recherche

Sainte-Marie (97438)

A VENDRE - TERRAINS A PARTIR DE 210 M² ENVIRON – SAINTE MARIE – A PARTIR 120 750 €

120 750 €
Ref : 126-SD-SR-2
Découvrir le bien

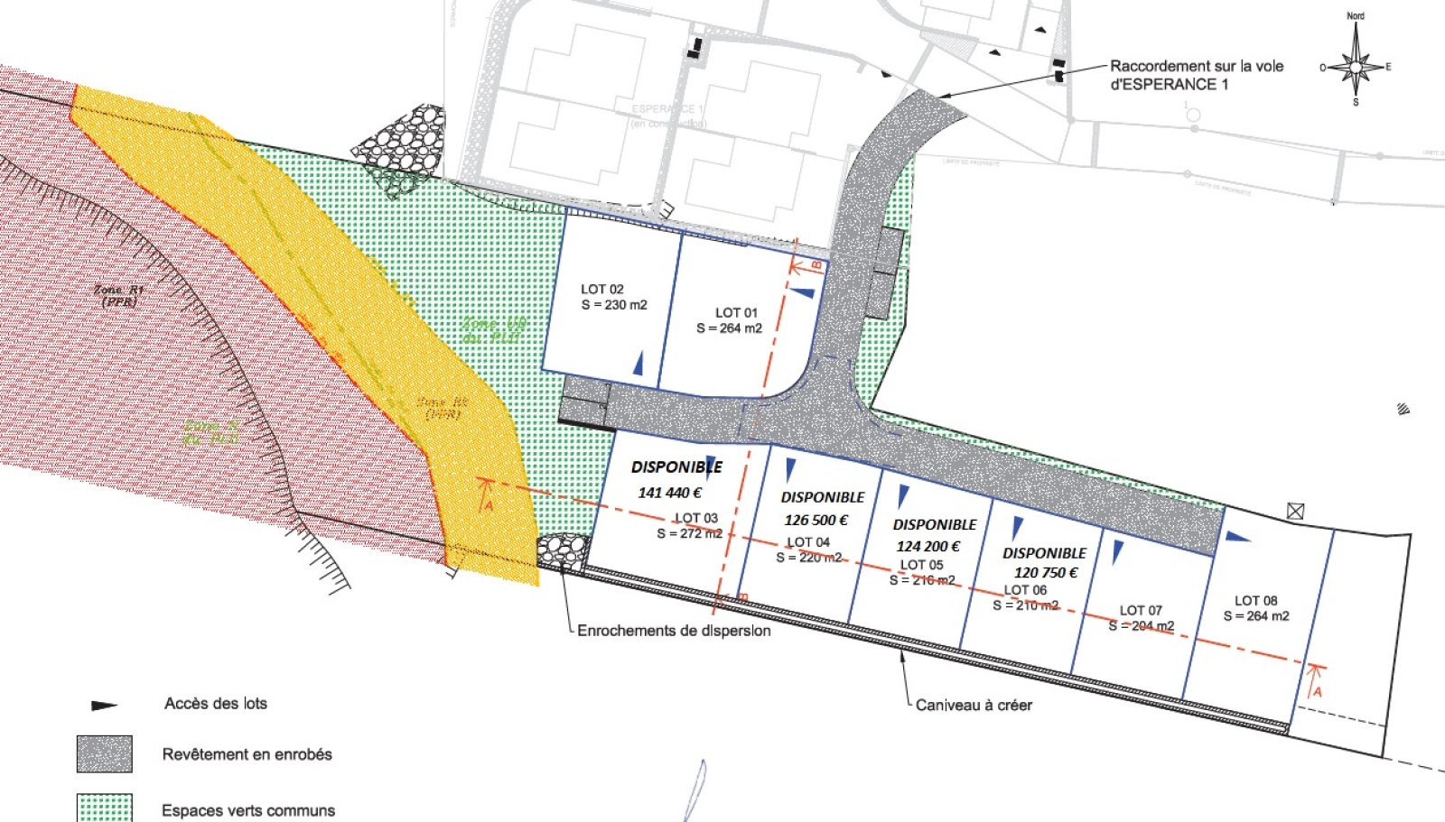
À VENDRE – Le Cabinet Habilis vous propose à la vente quatre terrains à bâtir, idéalement situés dans un quartier calme et résidentiel de Sainte-Marie, à seulement une dizaine de minutes de l’aéroport Roland Garros.

À proximité d’espaces naturels, ces terrains offrent un cadre de vie paisible et agréable, avec une vue dégagée sur le littoral, sans vis-à-vis.

Les terrains sont issus d’un lotissement, toutes classées en zone UD selon le Plan Local d’Urbanisme, ce qui permet la réalisation de projets résidentiels dans un environnement harmonieux.

Les lots actuellement disponibles sont les suivants :

  • Le lot 4, d’environ 272 m², au prix de 141 400 €.

  • Le lot 5, d’environ 220 m², au prix de 126 500 €.

  • Le lot 6, d’environ 216 m², au prix de 124 200 €.

  • Le lot 7, d’environ 210 m², au prix de 120 750 €.

Ces parcelles constituent une opportunité rare dans un secteur recherché, alliant tranquillité, accessibilité et qualité de vie.

Les honoraires sont Ă  la charge du vendeur

Vous pouvez consulter notre grille tarifaire en vigueur Ă  l'adresse suivante : https://www.cabinet-habilis.com/docs/nos-honoraires.pdf

Les informations sur les risques auxquels ce bien est exposé sont disponibles sur le site géorisques : www.georisques.gouv.fr

Contactez votre agence immobilière, sous le numéro de carte professionnelle n° : CPI 97412022000000006 délivrée par : CCI de la Réunion au 0693 226 226 ou au 0262 21 16 14 ou par mail sur s.randera@cabinet-habilis.com ou sur conseil@cabinet-habilis.com

Annonce rédigée sous la responsabilité éditoriale de l'agent commercial.

TRAD_ZEPHYR_Caracteristique TRAD_ZEPHYR_Valeurs
Code postal 97438
surface terrain 210 m²
Terrain constructible OUI
TRAD_ZEPHYR_Caracteristique TRAD_ZEPHYR_Valeurs
Prix de vente honoraires TTC inclus 120 750 €
Contacter pour ce bien
L'agence
Téléphone 02 62 10 58 24
Adresse
38 rue du Presbytère 97410 Saint-Pierre

* Champ obligatoire

Les informations recueillies sur ce formulaire sont enregistrées dans un fichier informatisé par La Boite Immo agissant comme Sous-traitant du traitement pour la gestion de la clientèle/prospects de l'Agence / du Réseau qui reste Responsable du Traitement de vos Données personnelles. La base légale du traitement repose sur l'intérêt légitime de l'Agence / du Réseau. Elles sont conservées jusqu'à demande de suppression et sont destinées à l'Agence / au Réseau. Conformément à la loi « informatique et libertés », vous disposez des droits d’accès, de rectification, d’effacement, d’opposition, de limitation et de portabilité de vos données. Vous pouvez retirer votre consentement à tout moment en contactant directement l’Agence / Le Réseau. Consultez le site https://cnil.fr/fr pour plus d’informations sur vos droits. Si vous estimez, après avoir contacté l'Agence / le Réseau, que vos droits « Informatique et Libertés » ne sont pas respectés, vous pouvez adresser une réclamation à la CNIL. Nous vous informons de l’existence de la liste d'opposition au démarchage téléphonique « Bloctel », sur laquelle vous pouvez vous inscrire ici : https://www.bloctel.gouv.fr Dans le cadre de la protection des Données personnelles, nous vous invitons à ne pas inscrire de Données sensibles dans le champ de saisie libre.
Ce site est protégé par reCAPTCHA, les Politiques de Confidentialité et les Conditions d'Utilisation de Google s'appliquent.

Découvrir nos outils