Espace propriétaire
fr

Votre recherche

Saint-Pierre (97410)

304 m²

A VENDRE - TERRAIN A PARTIR DE 304 M² ENVIRON - SAINT-PIERRE - A PARTIR DE 109 880 €

109 880 €
Ref : 4530-ERA-NK-2
Découvrir le bien

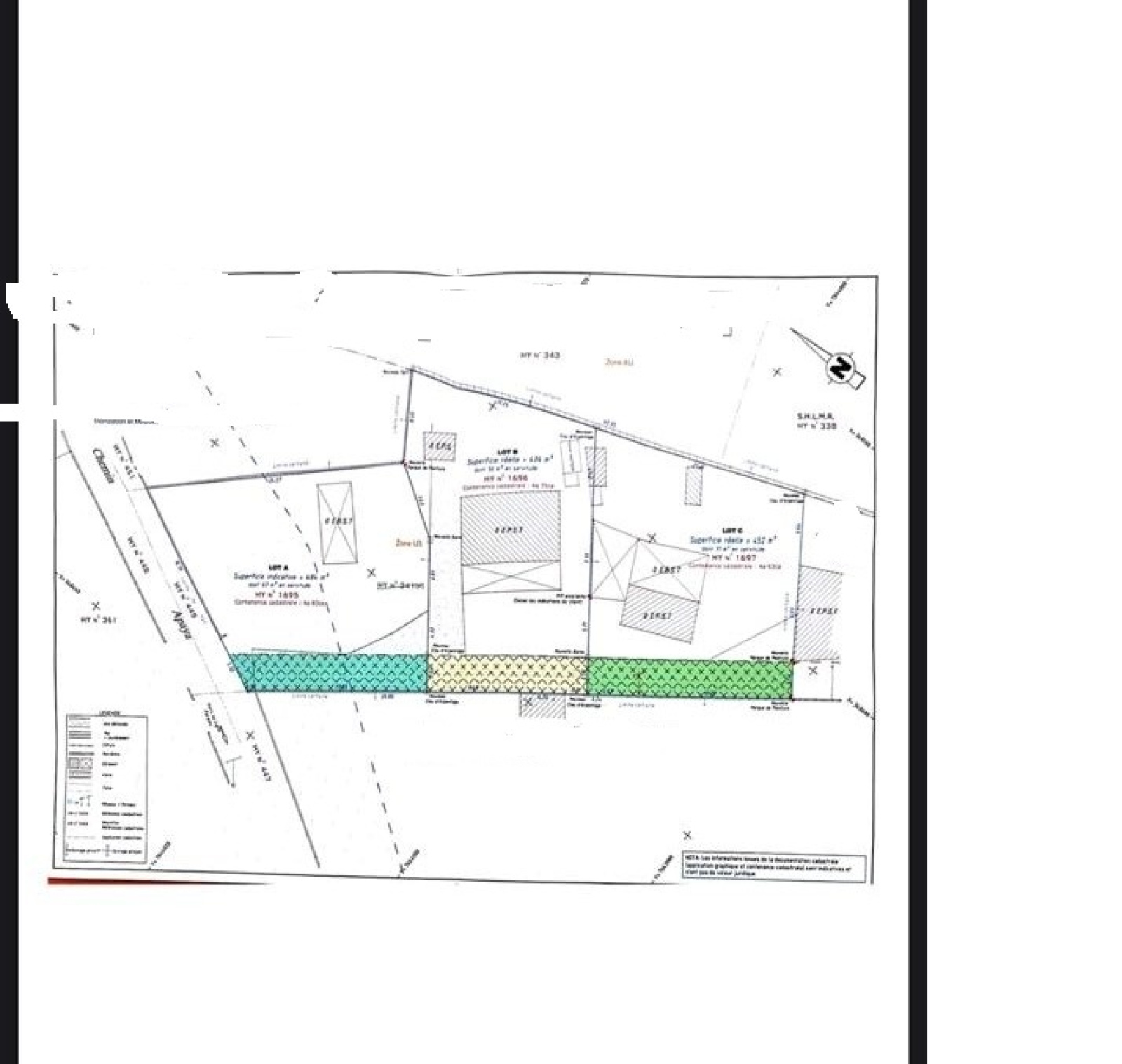
A VENDRE - Le Cabinet Habilis vous propose à la vente quatre terrains à prendre dans une plus grande parcelle de 1 714 m² environ, situé à SAINT-PIERRE dans le quartier de la Ligne Paradis.


Ce terrain est idéalement situé en zone UG (zone urbaine générale) selon le PLU, offrant des possibilités d’aménagement.

A proximité immédiate de toutes les commodités et des principaux axes routiers, ce bien bénéficie d'un emplacement stratégique pour un investissement locatif ou de construction résidentielle.

Ce bien est divisé en 4 parcelles distinctes, offrant une grande flexibilité pour un projet immobilier, qu’il soit locatif ou résidentiel.


- Lot 1 : 494 m² environ au prix de 159 912 €.

- Lot 2 : 474 m² environ, avec une maison à rénover ou à démolir de type T4 d'environ 78,9 m² au prix de 199 980 €.

- Lot 3 : 452 m² environ, sur lequel se trouve une maison à rénover ou à démolir de type T2 d'environ 24,85 m² au prix de 169 240 €.

- Lot 4 : 304 m² environ au prix de 109 880 €.

Ne manquez pas cette opportunité d'acquérir un de ces biens . Les honoraires sont à la charge du vendeur.


Vous pouvez consulter notre grille tarifaire en vigueur à l’adresse suivante : https://www.cabinet-habilis.com/docs/nos-honoraires.pdf

Les informations sur les risques auxquels ce bien est exposé sont disponibles sur le site géorisques : www.georisques.gouv.fr


Contactez votre agence immobilière, sous le numéro de carte professionnelle n° : CPI 9742 2017 000 017 264 délivrée par : CCI de la Réunion au 0693 000 229 ou au 0693 13 35 65 ou par mail sur n.khili@cabinet-habilis.com ou sur e.ramin@cabinet-habilis.com

Annonce rédigée sous la responsabilité éditoriale de l'agent commercial.

TRAD_ZEPHYR_Caracteristique TRAD_ZEPHYR_Valeurs
Code postal 97410
surface terrain 304 m²
TRAD_ZEPHYR_Caracteristique TRAD_ZEPHYR_Valeurs
Prix de vente honoraires TTC inclus 109 880 €
Contacter pour ce bien
L'agence
Téléphone 02 62 10 58 24
Adresse
38 rue du Presbytère 97410 Saint-Pierre

* Champ obligatoire

Les informations recueillies sur ce formulaire sont enregistrées dans un fichier informatisé par La Boite Immo agissant comme Sous-traitant du traitement pour la gestion de la clientèle/prospects de l'Agence / du Réseau qui reste Responsable du Traitement de vos Données personnelles.
La base légale du traitement repose sur l’intérêt légitime de l'Agence / du Réseau.
Elles sont conservées jusqu'à demande de suppression et sont destinées à l'Agence / au Réseau.
Conformément à la loi « informatique et libertés », vous pouvez exercer votre droit d'accès aux données vous concernant et les faire rectifier en contactant l'Agence / le Réseau.
Si vous estimez, après avoir contacté l'Agence / le Réseau, que vos droits « Informatique et Libertés » ne sont pas respectés, vous pouvez adresser une réclamation à la CNIL.
Nous vous informons de l’existence de la liste d'opposition au démarchage téléphonique « Bloctel », sur laquelle vous pouvez vous inscrire ici : https://www.bloctel.gouv.fr 
Dans le cadre de la protection des Données personnelles, nous vous invitons à ne pas inscrire de Données sensibles dans le champ de saisie libre
Ce site est protégé par reCAPTCHA, les Politiques de Confidentialité et les Conditions d'Utilisation de Google s'appliquent.

Découvrir nos outils